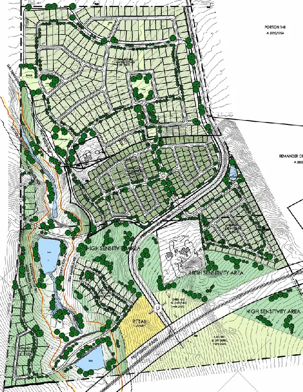
We have extensive experience in residential estate design ,from working on small cluster developments to larger residential estates, in a variety of markets. We set out the Urban Design Framework to create a home living lifestyle with a variety of communal facilities within a secure environment for a specific market. This, together with urban planning principles, the site conditions and the engineering services requirements inform the layout of the developments. This framework also includes the preparation of Architectural Guidelines and our serving on the Design Review Committees which guide the overall aesthetic integrity of the development.



